House in Sutomore, Zagraj, 293 м²
Property number: 1877
265 000 €
Description
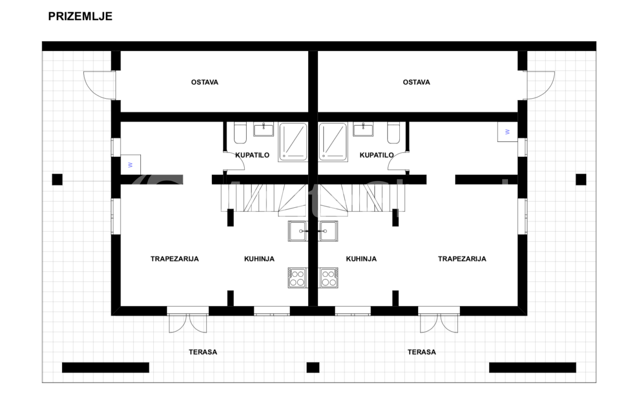
A two-story house located in the Zagraj district of Sutomore is for sale. The total area of the house including terraces is 293 m², while the living area is 260 m², on a 685 m² plot. The house requires major renovations, but has already been partially modernized.
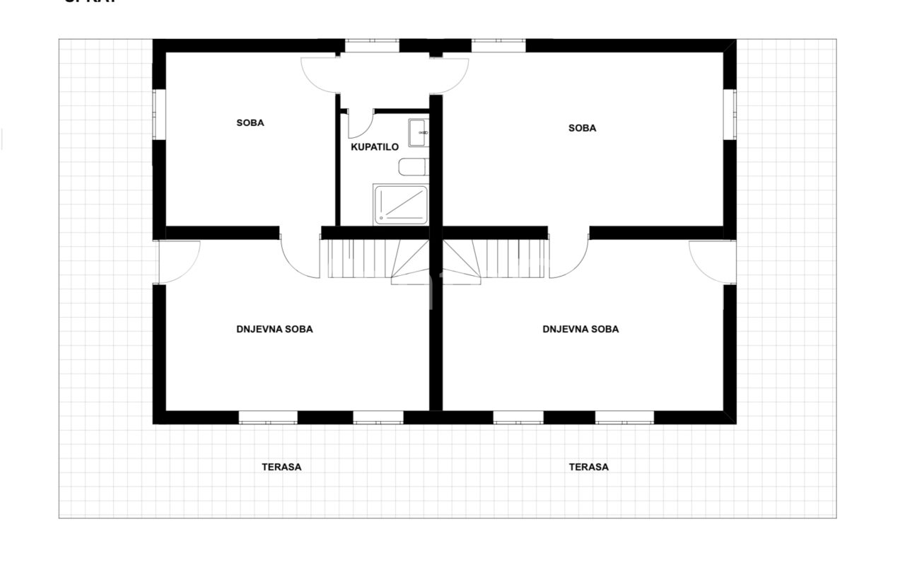
A unique feature of the house is its division into two equal parts by an internal wall, allowing for independent living for two families or for the owners and guests. The house offers magnificent panoramic views of the sea and mountains.
Utilities: city water, sewage system - septic tank.
The house has two kitchens and a dining room, two living rooms, two bedrooms, three bathrooms, and four terraces.
The property is landscaped with palm trees, trees, and shrubs, including fruit trees. The house is accessed via a convenient paved driveway and has parking for 2-3 cars. The beach is only 300 meters away (a 10-minute walk). The Zagraj neighborhood is located on the shores of Maljevik Bay, within a specially protected natural area. The town of Sutomore, with its well-developed infrastructure (schools, shops, kindergartens, and medical facilities), is 2 km away.
The house is completely legal, registered in the land registry without any encumbrances.
Property characteristics
-
293 м²
total -
685 м²
Grundstück -
260 м²
living -
2 bedrooms
-
2 floors
Property info
-
City view
-
Mountain view
-
Parking
-
Sea view
-
Terrace
Didn't find what you were looking for?
Leave a request for a free consultation. Our specialists will call back and help you with your questions.































